REQUEST A TOUR If you would like to see this home without being there in person, select the "Virtual Tour" option and your agent will contact you to discuss available opportunities.
In-PersonVirtual Tour

$ 1,550,000
Est. payment /mo
Active
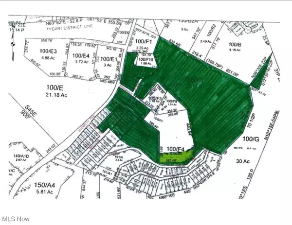
00 Elizabeth Pike Parkersburg, WV 26101
36 Acres Lot
UPDATED:
Key Details
Property Type Vacant Land
Sub Type Commercial
Listing Status Active
Purchase Type For Sale
MLS Listing ID 5094330
HOA Y/N No
Annual Tax Amount $2,900
Tax Year 2023
Lot Size 36.000 Acres
Acres 36.0
Property Sub-Type Commercial
Property Description
Commercial Property Containing Approx 36 Acres. Aprox 12 acres Flat Land. Some Taxes Are for rental Property which reflects on Taxes. Also on Property There Are Two Houses & Two Mobile Homes. Large Retail Development With All Utilities
With-in Half mile Of The South Parkersburg Walmart , Kohls Department Store & Many other Large Retailers.
With-in Half mile Of The South Parkersburg Walmart , Kohls Department Store & Many other Large Retailers.
Location
State WV
County Wood
Interior
Fireplace No
Exterior
Parking Features Unpaved
Water Access Desc Public
Building
Sewer Public Sewer
Water Public
Schools
School District Wood-Parkersburg South Hs
Others
Tax ID 08-100-000F0000

Listed by Roger D Oldaker • Berkshire Hathaway HomeServices Professional Realty • roldaker@bhhspro.com 304-483-1467








